找回密码
 注册
查看: 2140|回复: 12

草图大师试手,画的不对地方请老鸟指正

[复制链接]
发表于 2017-7-6 12:24:01 | 显示全部楼层 |阅读模式
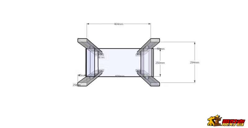
复斜榫,看到一个视频说凳腿用单肩榫支撑力大0 V, G$ `9 \! f
122357u74vqh4544q0474f.jpg
6 f$ G; X5 K2 q  M# V; B
5 R) B2 w  h. |9 r8 Q6 ^ 122358vbl9b25trs3jto9z.jpg
6 g, ~& ^/ c, ^# I! j3 r% a  [- L* j4 n" i' s) p( M3 B. w' r
122358qrqorztsx9sqditx.jpg
/ j7 ?! r' A, m" n: P/ i: f0 i3 M+ e
122359xs8xjjnp2njvjnsn.jpg 4 T/ |, T: r! H" u# p
* f3 b" j9 L- ^8 s; l
122400rl2l2lolhiznaol5.jpg
6 J. Y- k8 d$ \7 r7 W9 L8 h! t
- T: U4 G- X; W& O 122401zd38k3yd4fd3ex8j.jpg   ^9 d- u& a: \2 m! q5 c
! O4 k- `. W8 w. O6 a) x
回复

使用道具 举报

发表于 2017-7-6 12:50:09 | 显示全部楼层
沙发6 W. x) z6 v6 ~* e9 ~4 J  L
回复 支持 反对

使用道具 举报

发表于 2017-7-6 12:50:37 | 显示全部楼层
二沙发好, ~+ y5 W  W+ q+ m
回复 支持 反对

使用道具 举报

发表于 2017-7-6 12:51:11 | 显示全部楼层
比例多少高了点! J  ^( G7 E! M  r
回复 支持 反对

使用道具 举报

发表于 2017-7-6 12:57:09 | 显示全部楼层
我新手不说话。( M0 l& l# I) K, o' s% c* \
回复 支持 反对

使用道具 举报

发表于 2017-7-6 13:16:46 | 显示全部楼层
看图说话
. v8 B0 s+ J# B
回复 支持 反对

使用道具 举报

发表于 2017-7-6 13:21:38 | 显示全部楼层
能分享个软件,和教程吗" i$ s2 S5 t! [! s
回复 支持 反对

使用道具 举报

发表于 2017-7-6 13:33:30 | 显示全部楼层
能分享这个软件,和教程吗2 u* N, K% D$ W) `  s
回复 支持 反对

使用道具 举报

 楼主| 发表于 2017-7-6 14:28:58 | 显示全部楼层
francis6168 发表于 2017-7-6 13:33
1 G$ _  P" r+ x& o' M; L1 H7 q能分享这个软件,和教程吗

. h) X5 _  n" v" [. ?软件在我要自学网上有的下载,版本不是很新,但木工足够用了,视频教程这个网站上也有。
1 ]+ ~! ?/ L4 W& O- H+ _1 ]
回复 支持 反对

使用道具 举报

头像被屏蔽
发表于 2017-7-6 14:43:33 | 显示全部楼层
没表示出倾斜角度 实际画线时很难按已知料长把握
% a5 w7 M8 U( G% M2 n
回复 支持 反对

使用道具 举报

 楼主| 发表于 2017-7-7 21:42:12 | 显示全部楼层
福泽园木作 发表于 2017-7-6 14:43 " T  T0 p# {) p0 Y
没表示出倾斜角度 实际画线时很难按已知料长把握

. a4 L, H9 T, K% l: t9 [, Q角度均是1:5
4 }4 Y; m: [1 u, i' b
回复 支持 反对

使用道具 举报

发表于 2017-7-8 22:00:56 | 显示全部楼层
这个好
! `9 H( Y& ]) S: b: J
回复 支持 反对

使用道具 举报

头像被屏蔽
发表于 2017-7-9 17:43:41 | 显示全部楼层
烟与火的对白 发表于 2017-7-7 21:42
; E5 J% H+ P( J1 i角度均是1:5

2 |/ n& @& b5 @* C受教 谢谢
$ a* S9 p4 v  ?% h% g% `, V
回复 支持 反对

使用道具 举报

您需要登录后才可以回帖 登录 | 注册

本版积分规则


快速回复 返回顶部 返回列表