找回密码
 注册
楼主: 福瑞家橱柜

[装修] 近不惑之年,依托电商,小成本逆袭创业——开在8楼的定制家居店(直播)

   火.. [复制链接]
头像被屏蔽
发表于 2014-8-14 10:02:52 | 显示全部楼层
关注中,我也有这种想法
 楼主| 发表于 2014-8-14 17:41:07 | 显示全部楼层
山人妙计家具社 发表于 2014-8-14 10:02
- q$ g! J) I! p3 @关注中,我也有这种想法

: N& v) G/ |1 T, v5 ?' K* B) c9 i恩,我们互相沟通交流,找出一条低成本运作家居店的思路来!9 B% ^: w* L5 S6 j' G
 楼主| 发表于 2014-8-14 17:41:23 | 显示全部楼层
  经过一段时间的权衡,我选择了在电子商务产业园8楼开家居店。$ l; H4 R  a& h
  房子已经下来了,建筑面积170平方,明天准备过去收房,就要开始装修了。
 楼主| 发表于 2014-8-14 17:41:47 | 显示全部楼层
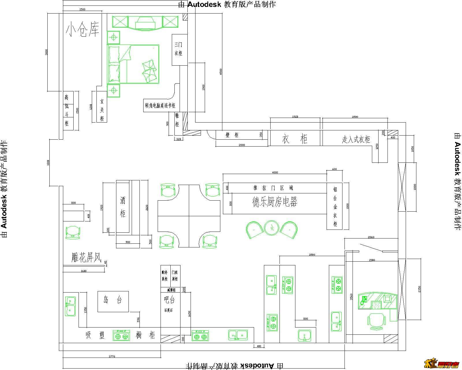
  前几天,我利用空余时间,把店面样品布局用CAD简单设计了一下,基本框架已经做出来来,我截图上传网络,希望方家给予批评和指导。
# [0 C7 P  \+ b- h6 `& o   店面设计图纸-Model.jpg
 楼主| 发表于 2014-8-14 18:10:37 | 显示全部楼层
qjy_jack 发表于 2014-8-13 22:22 ) H8 V. R& r/ Q7 X
支持。。烧钱。。。呵呵 。。。定制开个网店就可以了。还8楼。。实体店,鼓励一下吧。。看能撑多久!
! }+ {) l; I+ _7 a  y
呵呵,网店也做。2 ^- J) v! v: k; J
实体店是想走装饰公司、熟人介绍还有小区推广这三块,而且电商渠道中有一些距离济南近的客户,还可以来实体店看样板,这样可信度会更高一些。4 X) G6 J* N  Q1 u7 v' m- Q
总体来说我的销售思路是:电商(淘宝、装修论坛、同城交易平台、业主QQ群等)+装饰公司推荐+熟人“传、帮、带”+小区推广联合营销。客户源主要来自于以上所说的四个主要通路,没有稳定的随机客户源,所以过程注定是非常辛苦的,套用中国改革开放名句————“摸着石头过河”吧,希望不会淹死河里,呵呵!
1 M5 |! W# P2 o5 ]! P- {+ T
; ]. Y: D3 k0 ~, ~+ k
* A8 V* Y) s# w9 ]' e
 楼主| 发表于 2014-8-15 20:16:43 | 显示全部楼层
  今天到工地看了一下,约谈了几家装饰公司,沟通吊顶、墙漆和地面方案,基本确定吊石膏板造型顶,墙面2遍腻子2遍漆后再贴壁纸。
3 b  x# r! i! @; G4 N2 Y  地面分为两块,橱柜区铺瓷砖,板式家具区域铺木地板,办公室用玻璃隔断。
2 ]0 o6 {' z1 r; [7 l# ?0 { 1.jpg 2.jpg 3.jpg 4.jpg 5.jpg
发表于 2014-8-17 00:47:25 | 显示全部楼层
济南什么地方啊?我滨州的》方便的话去拜访一下>
 楼主| 发表于 2014-8-17 09:55:57 | 显示全部楼层
$ A7 F* i: X0 C+ w) Q+ }* R2 k
  省城济南限购放开一个月多,二手房住宅网签2685套,环比增长两成。0 c. U" c# g& N. Q7 E; ~. ~3 h
  但限购的放开确未能刺激家装市场,真正盈利的商家仅有20%左右,四年来,许多大型建材市场关门,共缩水40万平(据<齐鲁晚报>)。' K3 p2 p( y- F0 @2 Z( L
  从手机报上看到这样悲观的信息,自己也谨慎乐观起来,重新思考自己店面的机遇和风险性。1 W! R* j2 R8 K: E: u
  在目前家装建材普遍饱和的状态下,这种渠道的创新到底能不能在恶性的红海市场里分得一份羹?还需要再慎重考虑。
 楼主| 发表于 2014-8-17 09:56:46 | 显示全部楼层
漂移青春 发表于 2014-8-17 00:47 & a' t# Z# A. f. f  V* Z7 `
济南什么地方啊?我滨州的》方便的话去拜访一下>
. r& q/ w& ^' J
你好,欢迎前来知道工作。+ J- ^9 R  w2 m+ V
我工作QQ514838029,谢谢!7 |2 i7 w6 R* a$ x; k# C
发表于 2014-8-17 22:13:00 | 显示全部楼层
我也正有此想法
+ U  u, \1 u% Z! @! A& Z) P支持楼主
发表于 2014-8-17 22:50:44 | 显示全部楼层
楼主你好8月1日我在绍兴也来了一家定制家具的工厂,买了10多台马氏的设备,希望共同探讨。我的QQ1451043323& s& \. z0 ~; T# \+ c9 i9 \, `

( ^! X: B$ |# E' N# L& S来自:Android客户端
5 L+ i3 @1 p+ p6 Y: H. S浙江省绍兴市绍兴县柯南大道
 楼主| 发表于 2014-8-18 14:00:00 | 显示全部楼层
浙江绍兴有木友 发表于 2014-8-17 22:50 - }/ j' `; W4 m2 x
楼主你好8月1日我在绍兴也来了一家定制家具的工厂,买了10多台马氏的设备,希望共同探讨。我的QQ1451043323 ...

# ?7 `4 E. T3 l6 N好的,希望有机会跟你合作!{:5_299:}
8 C* o' |, h- A# k
发表于 2014-8-18 16:11:12 | 显示全部楼层
同龄人,支持一下!!!!!!
发表于 2014-8-19 13:28:40 | 显示全部楼层
楼主你好!咱们都是78年的,目前也正在筹备一个家具定制公司,顶你的同时也顶下我自己!2 z- Y+ {! g0 g2 q% k" v
 楼主| 发表于 2014-8-19 15:14:29 | 显示全部楼层
森森林林 发表于 2014-8-19 13:28
! _" i% h) g* b  M. U4 U楼主你好!咱们都是78年的,目前也正在筹备一个家具定制公司,顶你的同时也顶下我自己!
1 x2 C6 O! N5 O9 h  \! P0 q2 f- ^
{:5_299:},你好!) |1 \2 J6 v, j
你是加工厂还是门店啊?
$ [7 K- s+ D& q  [; f# i4 |# I7 d多沟通,多交流,互相学习,共谋发展之路!3 k( l7 x( e2 \' F5 [1 S
您需要登录后才可以回帖 登录 | 注册

本版积分规则


快速回复 返回顶部 返回列表