|
|
楼主 |
发表于 2014-4-25 15:59:30
|
显示全部楼层
陇上樵夫 发表于 2014-4-24 10:27 
1 S5 V8 a7 Z; B/ B4 z1 m5 a9 {! x占位备用
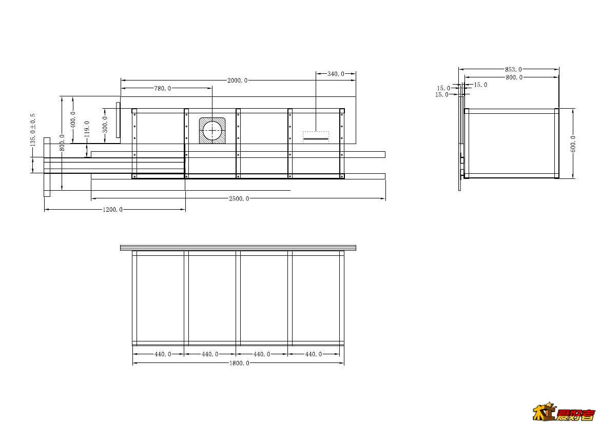
. W8 R' ^$ N8 F+ `! I, S1 w( }+ ]工作台篇 ) Q& k9 w) r' d$ a5 U# M0 A
工作台已做好,改天上实物图,先上设计图!- Y, x0 k* `) n% T5 Y: S$ Z$ y
所用材料:
/ X( T: t" n" G) K. Z40MM*3MM角铁5*6M=30M 130元9 v8 i6 m, f" H9 y4 R
50MM*30MM矩形钢管1*6M=6M 47元
7 ^& {- w; Q2 J8 U- Z! L) x胶合板1.22M*2.44M 1张 65元
* z( [& W, A$ Z8 d5 c螺丝若干
1 ~; P. b0 B3 J8 y合计:不到300元
# X4 M/ q" G$ I3 n* }! v1 U
|
|