找回密码
 注册
楼主: 星星夜谈

我的鞋柜

[复制链接]
发表于 2013-12-25 10:32:09 | 显示全部楼层
鞋柜的占地面积太大了
回复 支持 反对

使用道具 举报

发表于 2013-12-25 10:37:39 | 显示全部楼层
什么叫成就感啊?——老婆理解万岁!老婆支持万岁!老婆设计万岁!自己动手万岁!
回复 支持 反对

使用道具 举报

发表于 2013-12-25 11:06:19 | 显示全部楼层
呜呜~~,我的第一件做品还在纸上
回复 支持 反对

使用道具 举报

发表于 2013-12-25 11:14:36 | 显示全部楼层
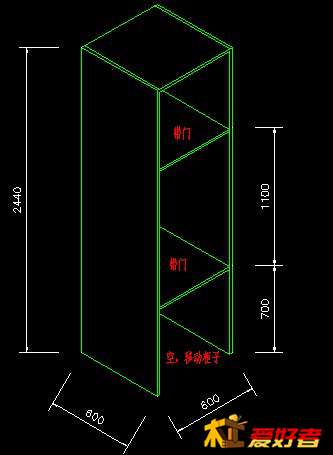
我的电圆锯还没到,板子买了,配件网购的,也在路上,准备自己做三件,试试手
0 e. h' a7 N! y  G( ~6 u# M* d, I+ W; B1 S& i1 @% c3 }% j/ c' z
补充内容 (2013-12-30 19:43):+ c- ?# D" i3 u, H! B, z* F
用CAD画的

衣柜

衣柜

杂物柜

杂物柜

电脑桌

电脑桌
回复 支持 反对

使用道具 举报

发表于 2013-12-25 12:54:21 | 显示全部楼层
推拉门鞋柜,倒也还真不错!
回复 支持 反对

使用道具 举报

发表于 2013-12-25 13:14:47 | 显示全部楼层
学习了!
回复 支持 反对

使用道具 举报

发表于 2013-12-25 14:16:30 | 显示全部楼层
还不错,加油
: ^& i2 h3 G" j" F$ ^6 i$ H& ^) I4 r2 t
回复 支持 反对

使用道具 举报

发表于 2013-12-25 19:25:56 | 显示全部楼层
做得挺好的,长度可以当床用了。单人没问题,双人必须叠加,三人就得叠罗汉;P+ j6 c1 h6 ]; y3 X$ _
鞋柜底部挡板(望板)应该缩进几公分。
回复 支持 反对

使用道具 举报

发表于 2013-12-25 20:43:07 | 显示全部楼层
做的真好,我也在做做榫卯结构的,也是第一次做榫卯,不知能不能做出来。感觉还是对开门方便,你这个门纹路有点怪怪的感觉(个人感觉)
回复 支持 反对

使用道具 举报

发表于 2013-12-26 00:07:29 | 显示全部楼层
家里有个设计师真好,继续努力吧。
回复 支持 反对

使用道具 举报

发表于 2013-12-26 15:02:38 | 显示全部楼层
学习   透气性好?木头的味道和鞋子的味道混大一起
回复 支持 反对

使用道具 举报

发表于 2013-12-27 10:29:47 | 显示全部楼层
是用实木板吗?还是什么板材?我小白一个
回复 支持 反对

使用道具 举报

发表于 2013-12-27 17:20:08 | 显示全部楼层
做的挺好的,我的还在设计中。
回复 支持 反对

使用道具 举报

发表于 2013-12-28 20:41:25 | 显示全部楼层
恭喜恭喜,
回复 支持 反对

使用道具 举报

发表于 2013-12-31 01:58:43 | 显示全部楼层
这鞋柜真大。。。
回复 支持 反对

使用道具 举报

您需要登录后才可以回帖 登录 | 注册

本版积分规则


快速回复 返回顶部 返回列表